Hotel Belval
Entwurfsstudie
Kulturbau
Entwurfsziel ist es, im ehemaligen Hüttenareal im Süden von Luxemburg ein Hotel am zentralen Platz „Square Mile“ zu entwerfen. Das ausgewählte Grundstück befindet sich zwischen den stillgelegten Hochöfen, auf dem auch zwei leere Sinterbecken aus der Stahlperiode platziert sind, welche im Zuge der Neubebauung begrünt werden und somit großartige Aufenthaltsflächen im neuen urbanen Stadtquartier bieten.
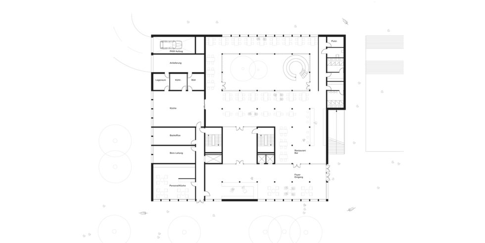
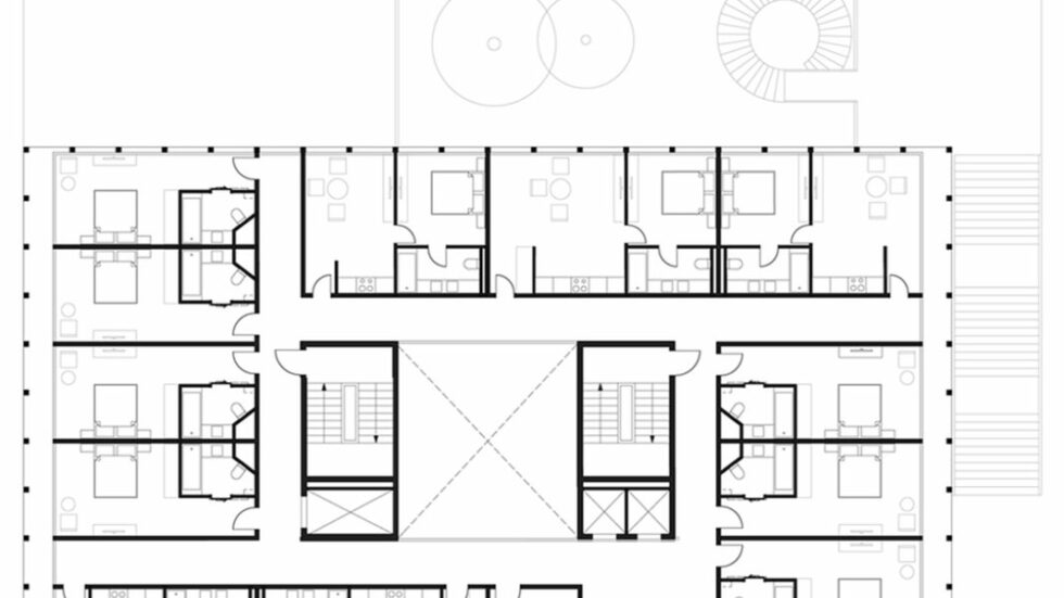
Der große Hotelkomplex bereichert die städtebauliche Situation am zentralen Platz, auf dem die Bauflucht des Quartierrasters aufgenommen wird. Der klar strukturierte, neungeschossige Baukörper mit strengem Raster und einer dominanten Sockelzone bildet ein starkes Element an diesem wichtigen Stadteingang. Die Sockelzone als halböffentlicher Gebäudekomplex beinhaltet neben der Lobby auch eine Gastronomiemöglichkeit, welche für Hotelgäste, sowie für die Laufkundschaft anberaumt ist. Die Dachfläche der dominanten Sockelzone wird als Aufenthaltsfläche genutzt und bietet durch ihre offene Gestaltung eine erhabene Blickbeziehung zu dem urbanen Vorplatz. In den Geschossen darüber sind 60 Zimmer unterschiedlicher Kategorien untergebracht. Das oberste Geschoss beinhaltet einen großen Wellnessbereich. Das Gebäude wird von zwei großen Höfen mit natürlichem Licht versorgt. Ein erster Lichthof befindet sich innerhalb der Sockelzone im Restaurantbereich. Der andere Lichthof befindet sich in der Mitte des sich abhebenden Baukörpers und zieht sich über alle Geschosse.
Projekte
Entwurfsstudie Kulturbau Auf dem Gelände eines ehemaligen Steinbruchs soll durch eine neue Attraktion die vulkanische Entstehungsgeschichte des Basaltsteinbruchs visualisiert werden. Mit dem Neubau eines Hotels und einem Ausstellungszentrum soll ein neues touristisches Ausflugsziel und Treffpunkt für das Einzugsgebiet „Am Gaulberg“ – nahe Frankfurt am Main – entstehen. Das architektonische Konzept sieht vor, das Raumprogrammvolumen in […]
Fassaden Entwurfsstudie Fassadenplanung Der Grundgedanke war, eine Elementfassade mit der Funktionsweise einer Doppelfassade zu entwerfen, mit dem Wunsch, eine Räumlichkeit im Fassadenbild zu schaffen, ohne dabei große Farbspiele zu verwenden, sondern dies rein durch die Form der Elemente zu realisieren. Die Keilform des einzelnen Elements entwickelte sich aus der Position der Belüftungseinheit. Durch die Wiederholung […]
Neubau eines Mehrfamilienhauses Das Grundstück in der Nähe des Nerotals in Wiesbaden zeichnet sich durch seine starke Hanglage, die von der Straße zum Garten hin um etwa drei Meter abfällt, aus. Die Hanglage ermöglicht es, neben den insgesamt vier Wohneinheiten auch zusätzlich im UG Wohnraum zu realisieren. Dieser kann zur Gartenseite hin komplett geöffnet werden […]

